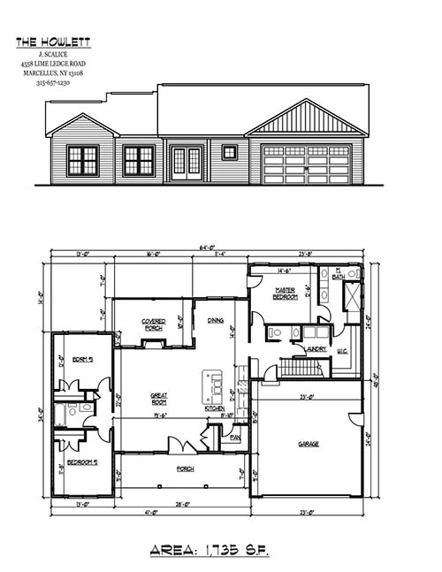
The Howlett

Highlights

1,7,35 sq ft

  • 3 Bedrooms
  • 2.5 Baths
  • 2 Car Garage
  • Master Suite
  • 1st Floor Laundry
  • Front & Back Porch

About this Home

The Howlett is a 3-bedroom ranch with an open living concept with plenty of space to entertain. It features a split bedroom set up with the primary suite on one end of the home and two additional bedrooms on the other. Finish your busy day while relaxing on your covered back porch!

Ready to Make Your Dreams a Reality?