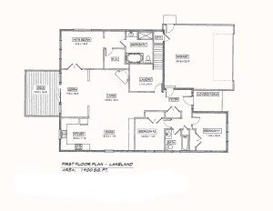
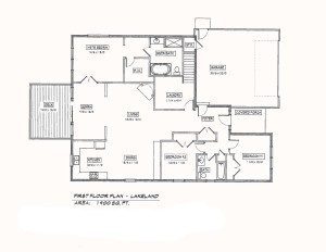
The Lakeland Series

Highlights

1,677 – 1,900 sq ft

  • 3 Bedrooms
  • 2 Baths
  • Garage
  • Master Suite
  • One Level

About this Home

Everything is convenient in this single-story 3-bedroom home. The generous-sized second bedroom overlooks a lovely view of the front yard. The owner’s retreat offers all the privacy you have been looking for, plus a master bath retreat and a massive walk-in closet. A generous pantry makes kitchen storage so easy. As in most of our ranch homes, the floor plan offers an open concept through the great room, kitchen, and dining area. 

Ready to Make Your Dreams a Reality?