The Prestwick

Highlights

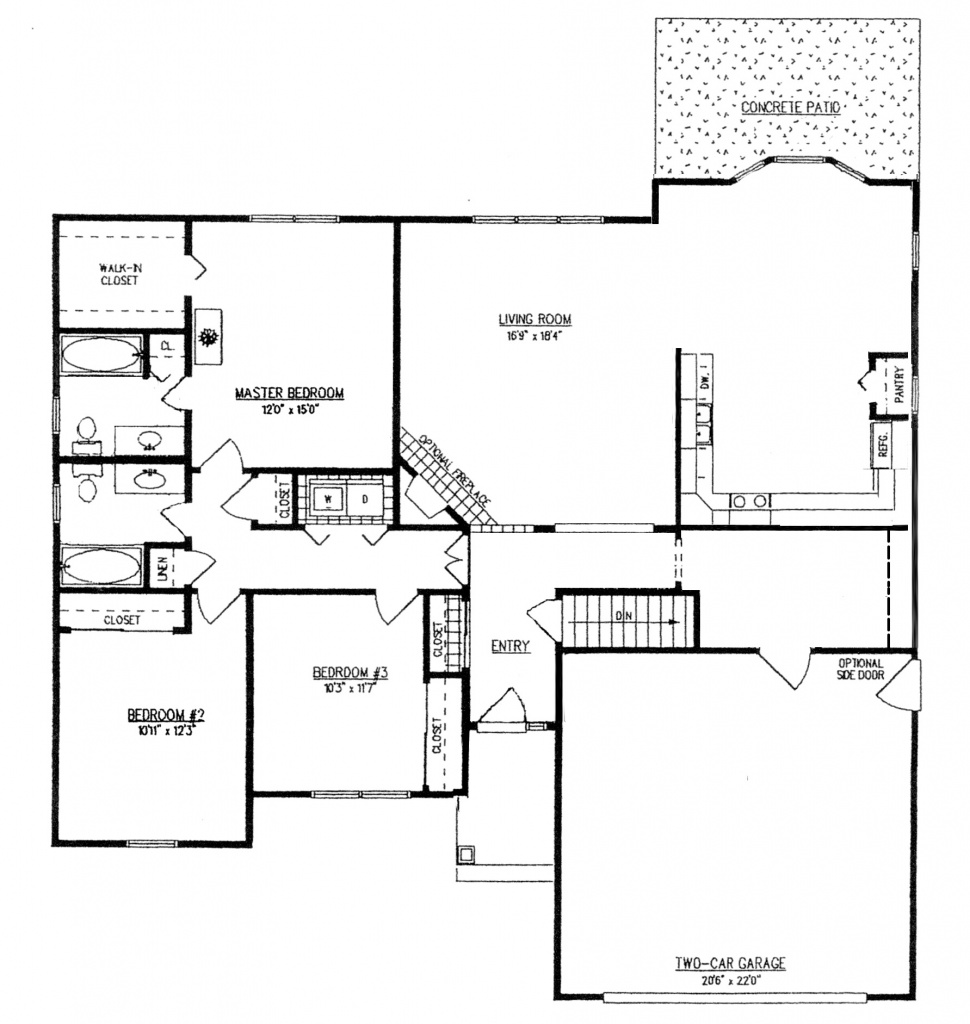
1,662 sq ft

  • 3 Bedrooms
  • 2 Baths
  • 2 Car Garage
  • Master Suite
  • Ranch Style

About this Home

The Prestwick uses its space masterfully. Your guests are greeted by a covered front entry and then they are transported through a short hallway into a generous great room. You can exit the 2 car garage into the main foyer which makes transporting groceries very easy, as the kitchen is located right off the main foyer. The owner’s suite us located next to the additional 2 bedrooms and the additional bedrooms are served by a hallway full bath. 

Ready to Make Your Dreams a Reality?