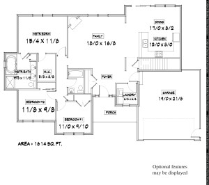
The Timberview

Highlights

1,639 sq ft

  • 3 Bedrooms
  • 2 Baths
  • 2 Car Garage
  • Master Suite
  • Colonial Style

About this Home

The Timberview blends timeless design with top-quality craftsmanship to create a remarkable 3-bedroom ranch home. Your open-concept living space features energy-efficient windows and boundless decorative potential. Cherish some relaxing moments from your covered front porch and offer a friendly wave to your neighbors. Your master bedroom suite provides a quiet retreat from the world and includes a refined private bathroom. 

Ready to Make Your Dreams a Reality?