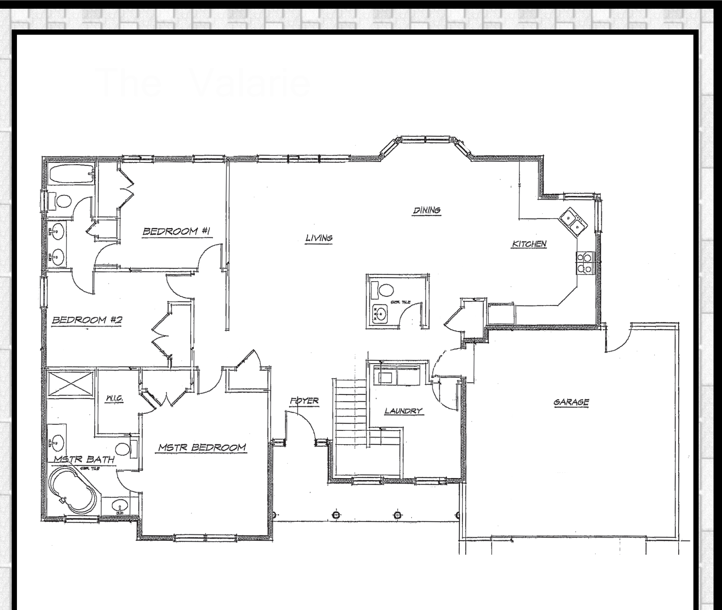
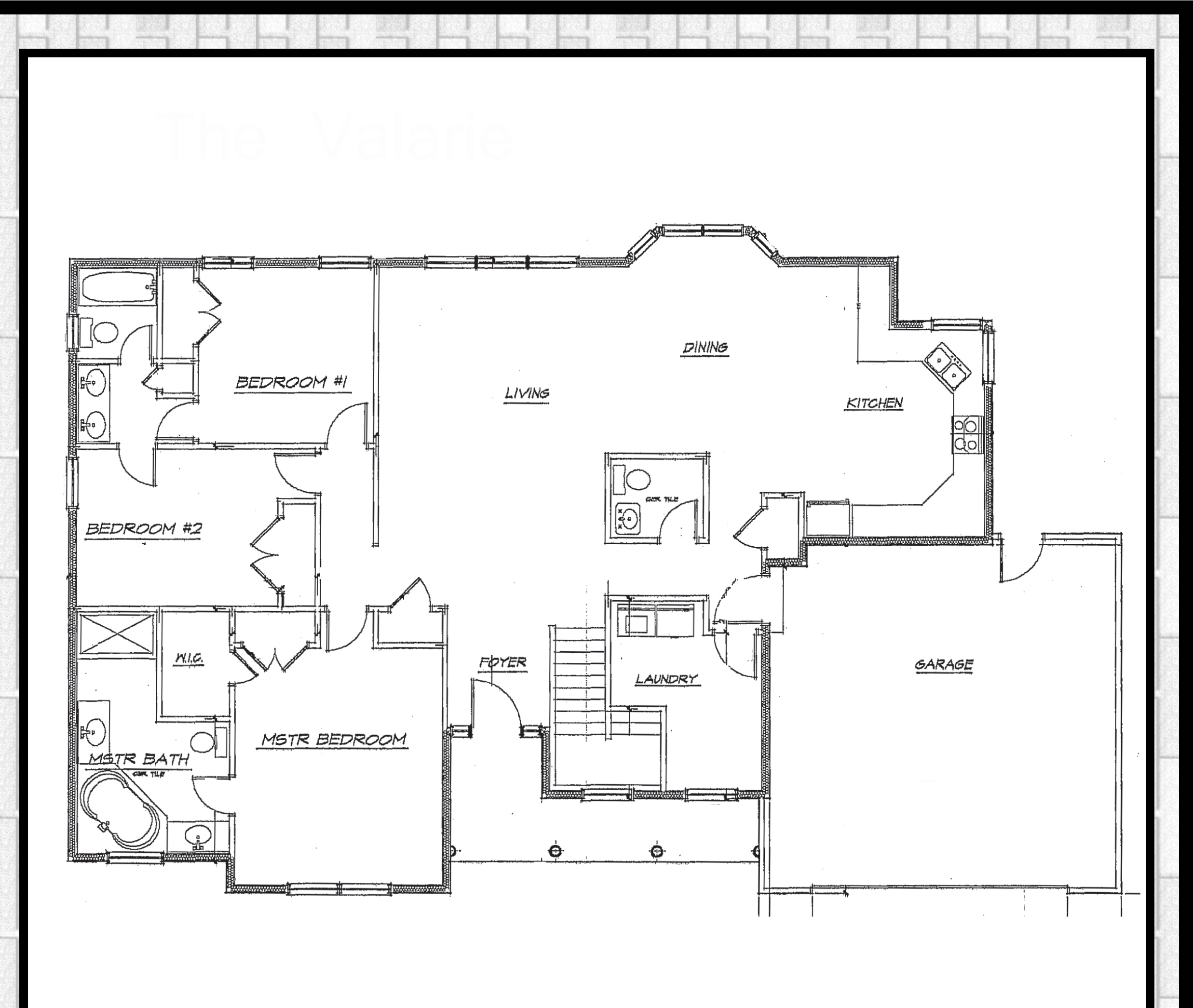
The Valarie

Highlights

1,845 sq ft

  • 3 Bedrooms
  • 2.5 Baths
  • Master Suite
  • One Level

About this Home

Expect to be wowed. The Valarie is one of our larger ranch plans and is packed with surprises. At over 1,800 sq ft, this 3 bedroom, 2.5 bath home offers and open concept where the main living area easily flows into the kitchen and dining area. The second and third bedrooms offer another surprise as they share a private bath that can be accessed from each room without going into the hall. 

Ready to Make Your Dreams a Reality?